




















































Get additional information including price lists and floor plans.
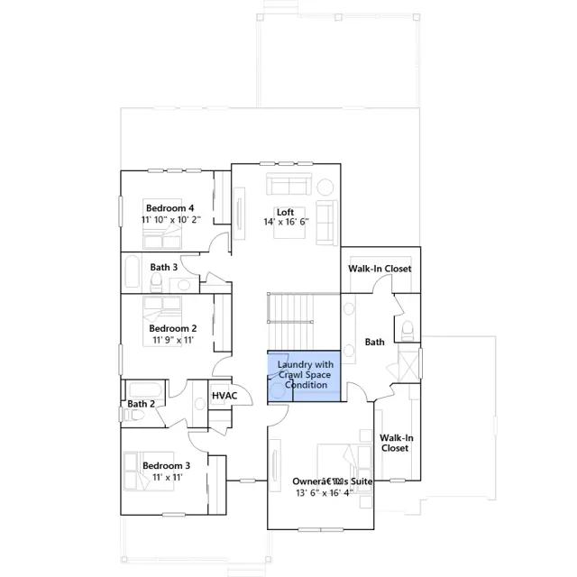
Showcasing Lennars Next Gen design, this two-story residence is ideal for multigenerational households. The main home features an open layout on the first level and three bedrooms, including the owners suite, on the second. The private suite has its own separate entrance, living room, kitchenette, bedroom and bathroom.
Stay informed with Livabl updates on new community details and available inventory.