































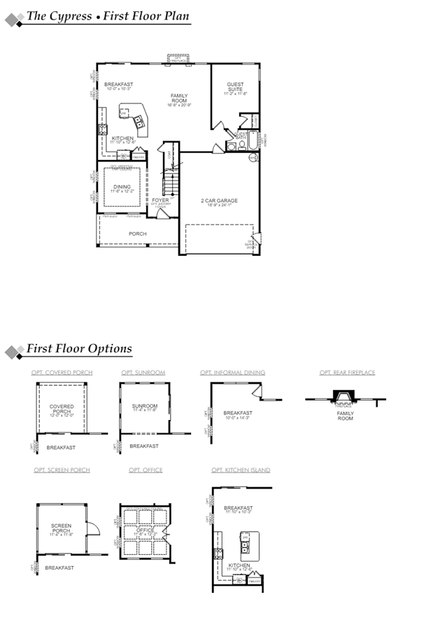
The Cypress is a two story four bedroom three bath home with a formal dining room a first floor guest suite with a full bath and a kitchen with an island and pantry. The second floor features the primary bedroom two additional bedrooms a hall bath a convenient upstairs laundry room and an oversized loft area. Options available to personalize your home include a sunroom screen porch or covered porch a first floor study with French doors an expanded informal dining area a sitting room off the primary bedroom an additional bedroom upstairs and an optional third floor with bonus room or bedroom and full bath.
Stay informed with Livabl updates on new community details and available inventory.