






































Get additional information including price lists and floor plans.
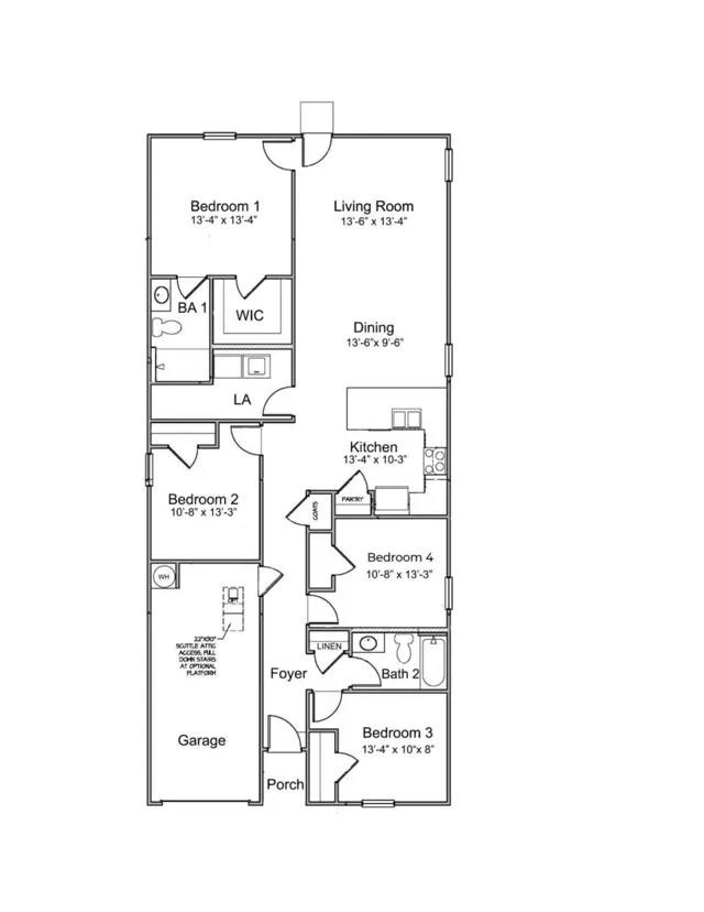
One of our newest floorplans, the Helena! The Helena is a 4-bedroom, 2-bathroom home with a 1 car garage designed for efficiency and comfort. Walking in through the foyer, you'll find 2 front bedrooms with a shared bathroom in between. There is another room just off the of the spacious kitchen, perfect for a home office or guests when they come to stay. The kitchen comes with stainless steel appliances including a smooth top range, microwave and dishwasher. The primary suite being at the back of the home features a walk-in shower, walk in closet, and has a single vanity. All new homes will include D.R. Horton's Home is Connected package, an industry leading suite of smart home products that keeps homeowners connected with the people and place they value the most. This technology allows homeowners to monitor and control their home from the couch or acr...
Stay informed with Livabl updates on new community details and available inventory.