























































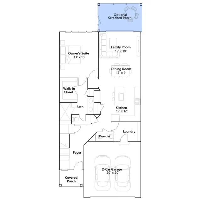
This two-story homefeaturesanopen familyroomwith two-story-tall ceilingsthat immediately brings a sense of height andluxuryto theinteriorarea. Nestled away on the first floor is the airy owners suite, while the remaining two bedrooms and a loft occupy the upstairs.
Stay informed with Livabl updates on new community details and available inventory.