






























































































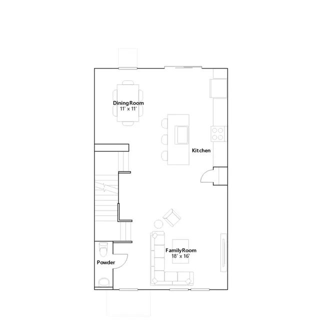
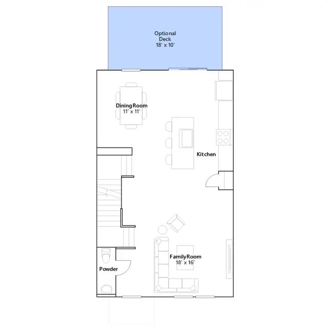
Upon entry into this modern three-story townhome is a spacious recreation room designed for gatherings and entertainment. Upstairs is the main level, showcasing an open-concept family room that seamlessly blends into the chef-ready kitchen and intimate dining room. All three bedrooms are situated on the top level to provide maximum privacy, including the owners suite with an attached bathroom.
Stay informed with Livabl updates on new community details and available inventory.