




































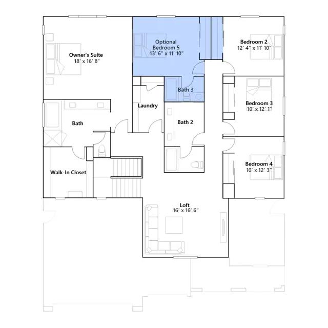
This new two-story Next Gen home features a private suite with a separate entrance, living area, kitchenette, bedroom and bathroom ideal for multigenerational households. The main home is host to an inviting open-concept layout where the kitchen, living and dining areas meet. On the second level, four additional bedrooms, including the lavish owners suite with a full bathroom and retreat, surround a versatile loft.
Stay informed with Livabl updates on new community details and available inventory.