























































Get additional information including price lists and floor plans.
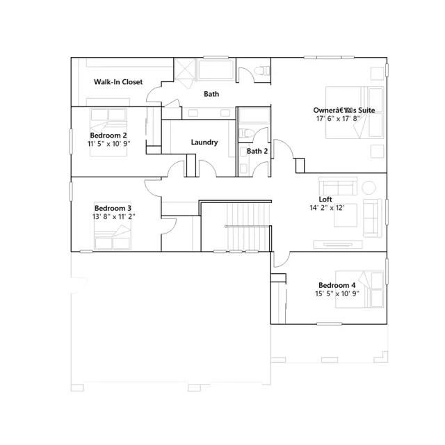
This new two-story home features a secluded office off the foyer along with a formal dining room. On the first floor, an open-concept layout encourages simple transitions and everyday multitasking, near a convenient bedroom perfect as a guest suite or studio. On the second floor is an inviting and versatile loft, providing a convenient shared living area easily accessible from three bedrooms and a lavish owners suite with a full bathroom and walk-in closet.
Stay informed with Livabl updates on new community details and available inventory.