













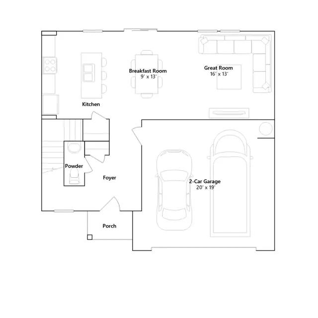
On the first floor of this new two-story home is the open-concept main living area to promote effortless transitions between spaces. It showcases a modern kitchen with a center island overlooking an intimate dining room and a spacious Great Room made for airy gatherings. Upstairs are all four bedrooms in the home to provide peaceful retreats and a versatile loft ideal for work or entertainment.
Stay informed with Livabl updates on new community details and available inventory.