


























Get additional information including price lists and floor plans.


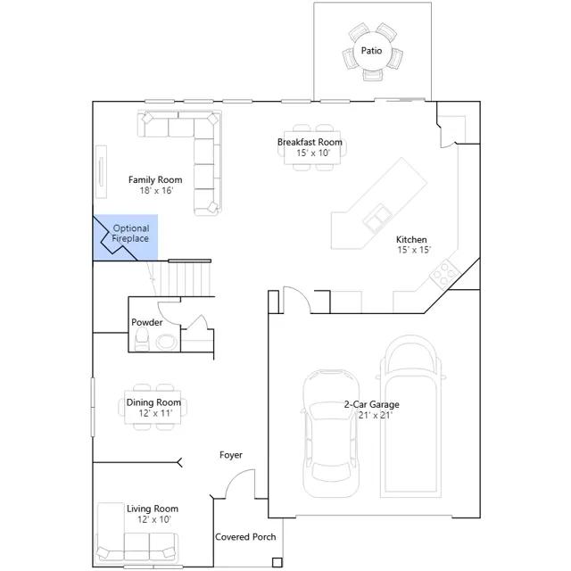
This new two-story home is a family-friendly haven. The first floor features an open design among the welcoming family room, large gourmet kitchen and breakfast room, plus a formal living and dining room for entertaining and a patio for outdoor living. Upstairs are a versatile bonus room and four bedrooms including the owners suite. An optional study, loft and fifth bedroom are available.
Stay informed with Livabl updates on new community details and available inventory.