



































































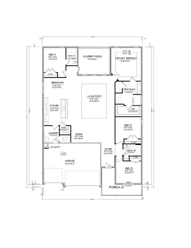
Discover the Destin, a captivating floorplan at Woodgate, our serene new community nestled in the charming city of Canton, MS. This thoughtfully designed home offers 4 bedrooms, 3 bathrooms, and a spacious 3-car garage, providing 2,304 square feet of elegance and functionality. Step inside from the covered entry and into the welcoming foyer, where a thoughtfully placed hallway leads to a full bathroom situated between bedrooms 2 and 3perfect for family or guests. As you journey further, youll find a seamless blend of style and comfort. The open-concept design integrates a formal dining room, a gourmet kitchen, a cozy breakfast nook, and a bright living space. The kitchen, a chefs delight, boasts granite countertops, stainless steel appliances, shaker-style cabinetry, a walk-in pantry, and a center island with bar seating. Expansive windows fill the living area ...
Stay informed with Livabl updates on new community details and available inventory.