
















































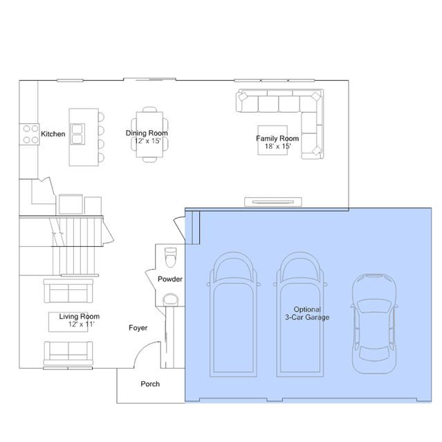
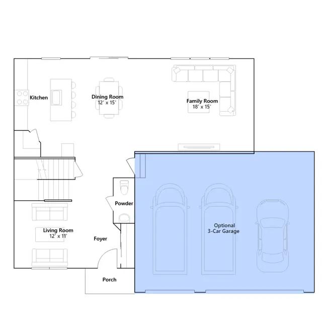
The entryway leads to the first level of this new two-story home, where a versatile living room can be found off the foyer while the family room, dining room and kitchen share an open-concept design for seamless everyday living. Upstairs, four bedrooms provide enough space for a growing family.
Stay informed with Livabl updates on new community details and available inventory.