















































































Get additional information including price lists and floor plans.
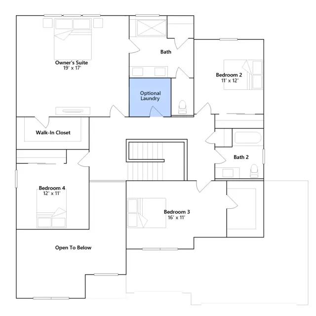
A foyer leads directly into the double-height living and dining room of this two-story home, while the family room, kitchen and breakfast room share a spacious open floorplan toward the back. Ideal for at-home work is a quiet study. The top level hosts all four bedrooms, including the sprawling owners suite with an attached bathroom and split walk-in closets. A highly desirable three-car garage is included.
Stay informed with Livabl updates on new community details and available inventory.