

































































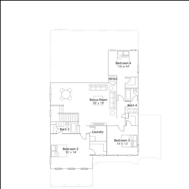
This new two-story home combines sophistication and upscale comfort with its expansive floorplan. On the first floor is an open-concept main living area to promote seamless everyday living. Framing this area is the lavish owners suite with a spacious walk-in closet and attached bathroom, along with a bedroom ideal for overnight guests. Upstairs is a sprawling bonus room and three large bedrooms to provide restful retreats.
Stay informed with Livabl updates on new community details and available inventory.