





























Get additional information including price lists and floor plans.

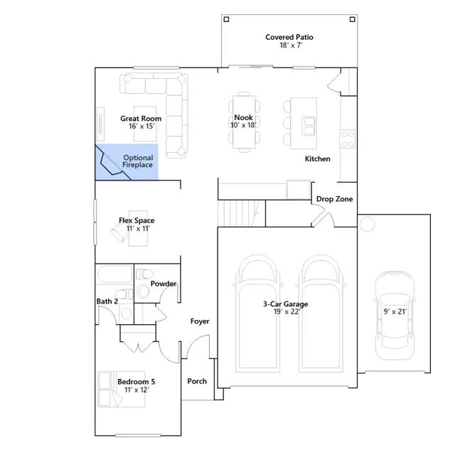
The largest floorplan available in this collection, Kingston offers an open layout among the Great Room, nook and kitchen on the first floor, plus a flex space and a fifth bedroom perfect for overnight guests. Upstairs are four more bedrooms, including the owners suite, and a loft for additional living space. Completing the home is a versatile three-car garage.
Stay informed with Livabl updates on new community details and available inventory.