



































































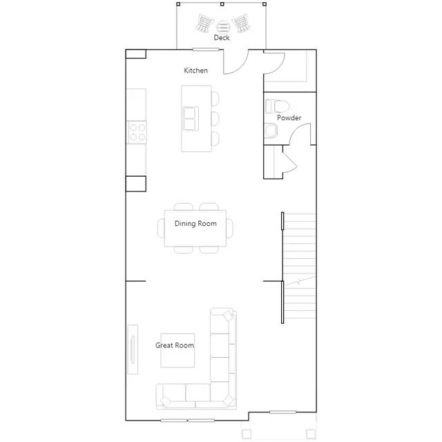
This new three-story townhome is designed for comfort, with a first-floor bedroom suitable for guests. The second floor has a Great Room for family fun, a casual dining area for memorable meals, a kitchen for inspired cooking and a deck for outdoor living. Bedrooms including the owner's suite are on the third floor.
Stay informed with Livabl updates on new community details and available inventory.