




















































































Get additional information including price lists and floor plans.
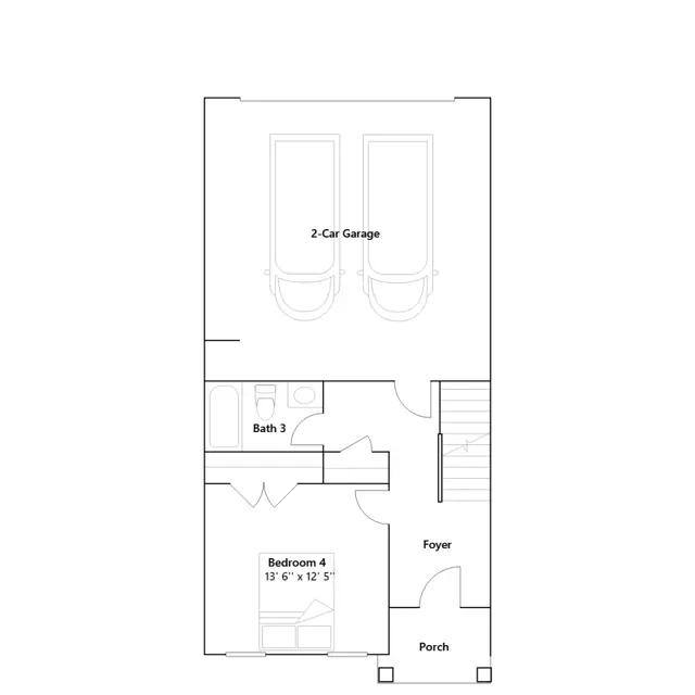
This new three-story townhome has a modern design, with a first-floor bedroom. The open-plan main living area is on the second floor, along with a deck for morning coffee and moonlight meals. Bedrooms on the third floor include the owner's suite, with a bathroom featuring twin vanities and a walk-in shower with a seat.
Stay informed with Livabl updates on new community details and available inventory.