






















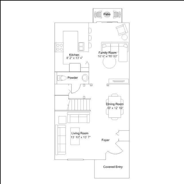
Enter through the foyer of this two-story townhome to find the spacious living room and dining room, while the kitchen and family room are situated towards the back of the first level. All three bedrooms including the luxurious owners suite can be found on the second floor.
Stay informed with Livabl updates on new community details and available inventory.