










Get additional information including price lists and floor plans.

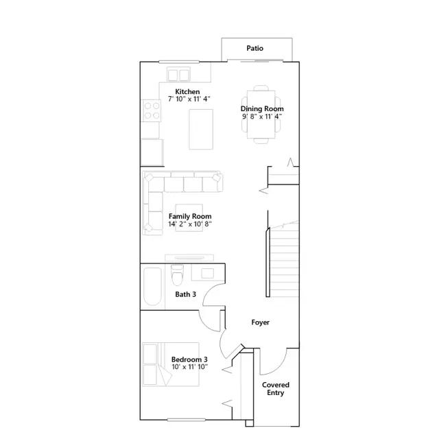
The first level of this two-story townhome is host to the family room, kitchen and dining room, arranged in a convenient open floorplan that maximizes the footprint of the interior. Also on the first level is a bedroom that would be ideal for overnight guests. The second floor is occupied by two additional bedrooms.
Stay informed with Livabl updates on new community details and available inventory.