











































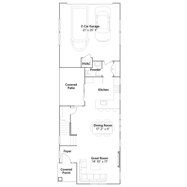
This new two-story home boasts a spacious and modern layout with ample room to live and grow. On the first level is an inviting open-concept floorplan with access to a covered patio, perfect for everyday entertaining and multitasking. Upstairs, three bedrooms surround a versatile loft area, including the luxurious owners suite at the front of the home, offering access to a spa-inspired bathroom and generous walk-in closet.
Stay informed with Livabl updates on new community details and available inventory.