


































































Get additional information including price lists and floor plans.

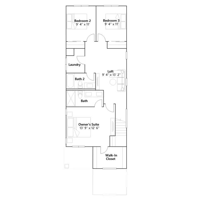
This new two-story home boasts a modern and spacious layout. On the first level an inviting open-concept floorplan combines the kitchen, living and dining areas, helping to simplify everyday entertaining and multitasking. Upstairs, a versatile loft provides a convenient shared living area near three bedrooms, including the luxurious owners suite at the front of the home, complete with an en-suite bathroom and roomy walk-in closet.
Stay informed with Livabl updates on new community details and available inventory.