














































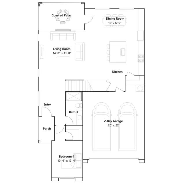
This two-story home is the largest plan in this collection and features a double-height entryway that leads to an open space living room, kitchen and dining room, with access to the covered patio. In addition to the luxe owners suite, there are three more bedrooms and a spacious upstairs loft.
Stay informed with Livabl updates on new community details and available inventory.