

































Get additional information including price lists and floor plans.
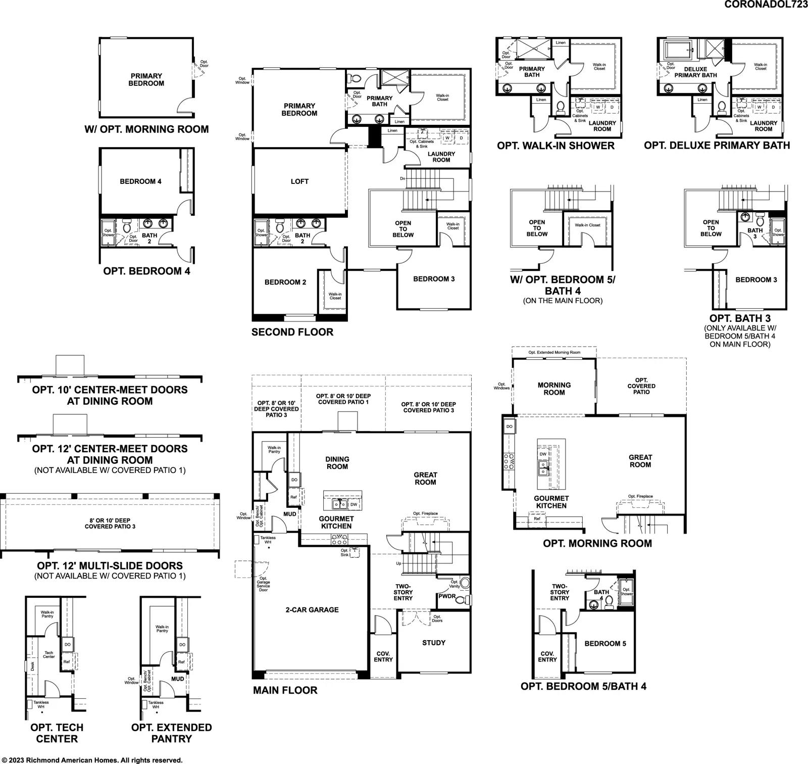
The main floor of the Coronado floor plan provides spaces for working and entertaining. Enjoy a great room, an open morning room with covered patio, and a gourmet kitchen, complete with center island and walk-in pantry off the mudroom. A bedroom and full bath are also included. Upstairs, discover a convenient laundry, a generous loft and three inviting bedrooms, including a relaxing primary suite with an attached bath and expansive walk-in closet.
Stay informed with Livabl updates on new community details and available inventory.