



















































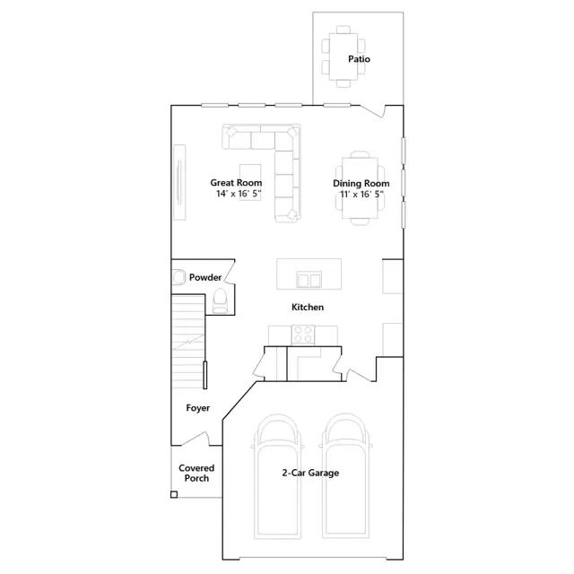
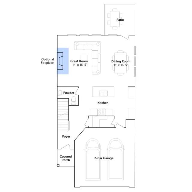
This new two-story home is casual and elegant. The first floor has an open plan among the kitchen, dining space and Great Room with a patio for sipping sweet tea. Upstairs are a loft that could be a home office and three bedrooms, including the luxe owners suite.
Stay informed with Livabl updates on new community details and available inventory.