













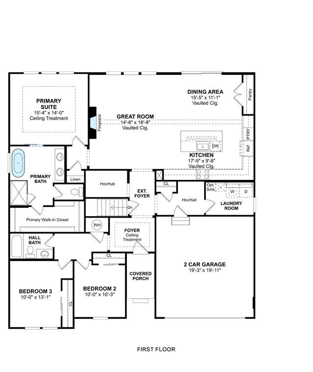
Extended foyer perfect for greeting guests. Beautiful kitchen with large island overlooking dining area. Stunning Looks options available in kitchen. Spacious great room, perfect for entertaining. Luxurious primary suite with triple windows. Relaxing primary bath with dual sinks and walk-in closet.
Stay informed with Livabl updates on new community details and available inventory.