



































































Get additional information including price lists and floor plans.
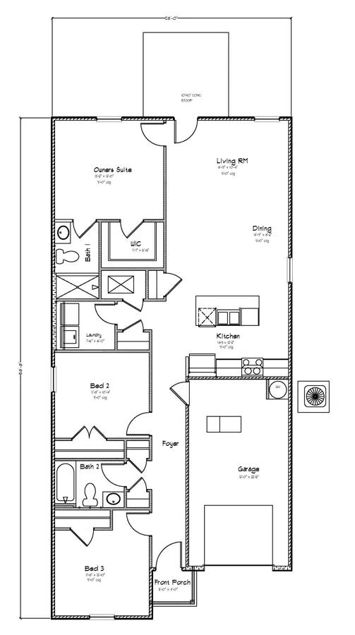
Introducing the Delilah, a delightful one-story home that perfectly blends charm and functionality, featured in our Bienville Landing community of Foley, Alabama. With 3 bedrooms, 2 bathrooms, and 1,281 square feet of well-designed living space, this home offers a comfortable and efficient layout for modern living. Choose from numerous stunning exterior options to personalize your homes curb appeal. Upon entering, you'll find two generously sized bedrooms and a full bathroom conveniently located between them. The one-car garage is also easily accessible from this side of the home. As you continue through, the heart of the home reveals a spacious kitchen featuring a central island, ideal for meal prep or casual dining. The kitchen seamlessly flows into the dining area and living room, creating an open-concept design thats perfect for hosting friends and famil...
Stay informed with Livabl updates on new community details and available inventory.