



































































Get additional information including price lists and floor plans.
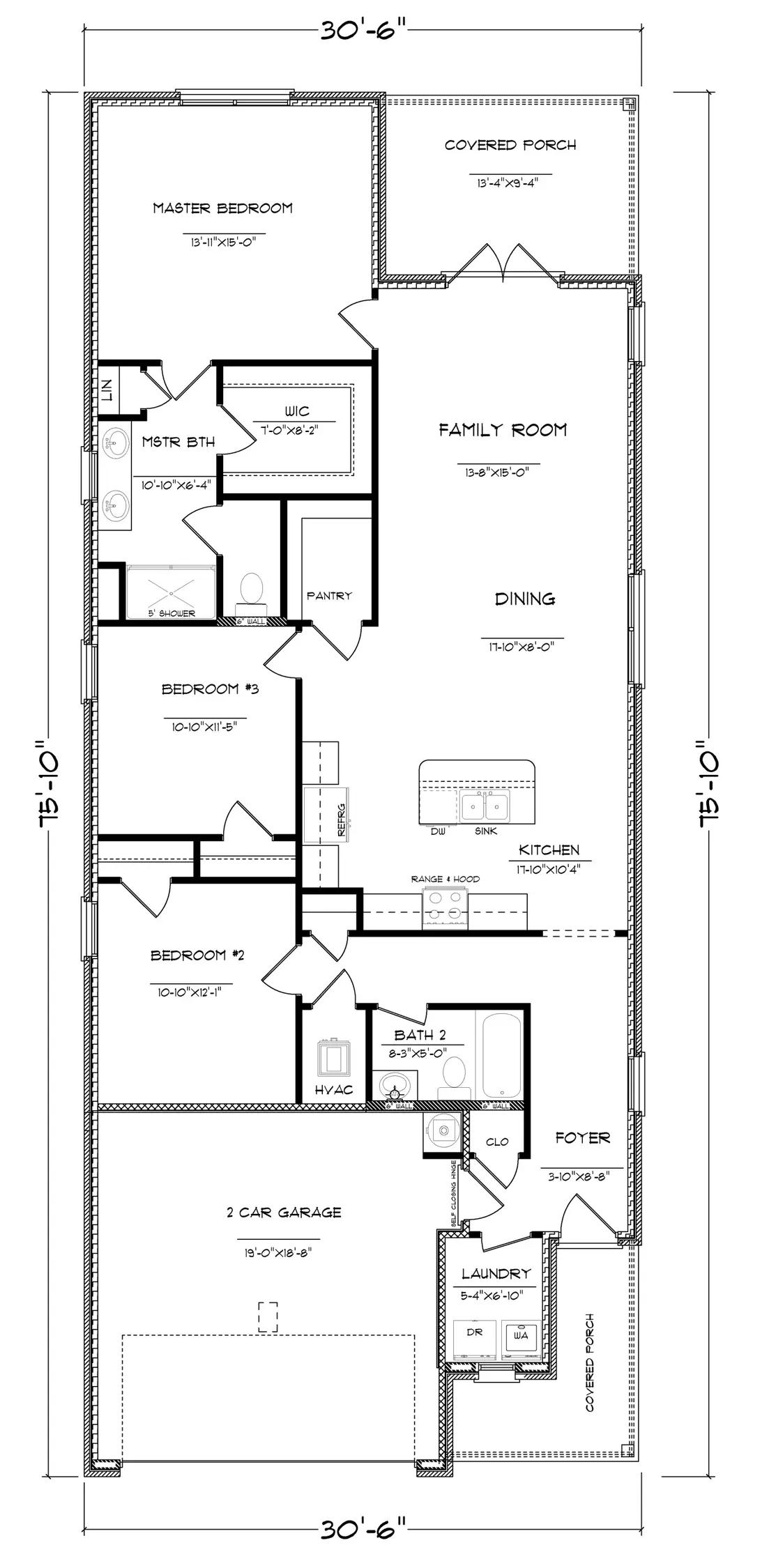
Welcome to the Jemison, a beautifully designed floor plan located in the vibrant Roberts Cove community in Foley, Alabama. Ideal for first-time homebuyers or anyone seeking quality and convenience, the Jemison offers the perfect blend of comfort, style, and modern living. As you approach the charming covered front porch and step inside, you'll be greeted by a spacious foyer that leads into an expansive open concept living area. This home boasts 9-foot ceilings and is designed for making lasting memories, with a seamless flow between the family room, dining area, and kitchenthe heart of the home. The kitchen is a chefs dream, featuring a large center island and a generous pantry, providing plenty of space for meal prep and storage. The family room is a cozy yet elegant space, perfect for relaxing or entertaining. It flows naturally to the inviting covered ba...
Stay informed with Livabl updates on new community details and available inventory.