













































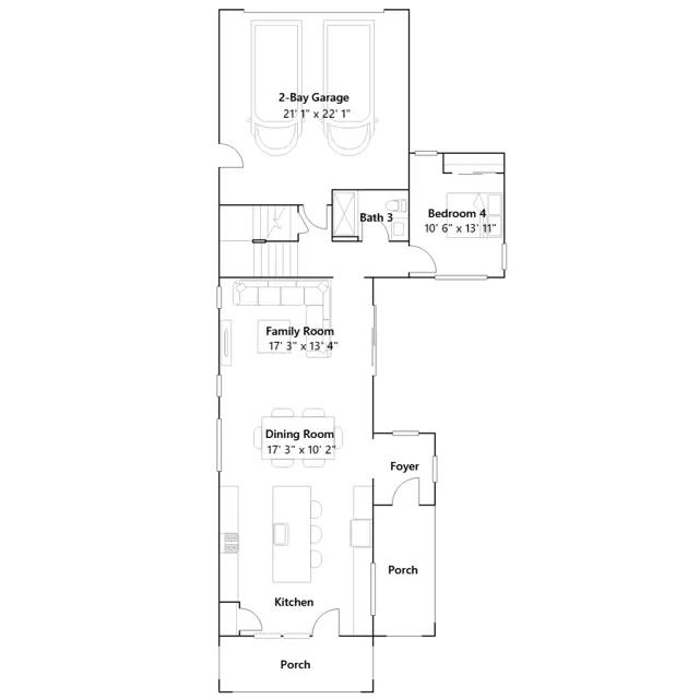
This new two-story home features an inviting open-concept floorplan on the first level, with a convenient bedroom tucked away near the two-bay garage. On the second floor, three additional bedrooms surround a versatile loft, including the luxe owners suite with a full bathroom and walk-in closet. Source: Lennar
Stay informed with Livabl updates on new community details and available inventory.