


































Get additional information including price lists and floor plans.
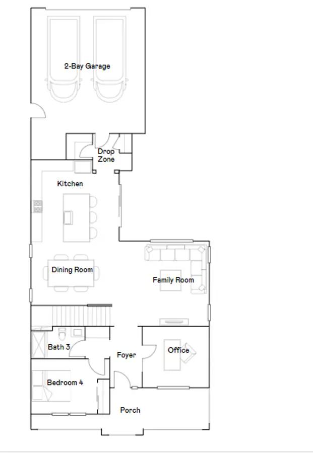
This new two-story home is designed for how people live today. An office and bedroom are located off the foyer, leading to an open-concept floorplan that blends the kitchen, living and dining areas. On the second floor, a versatile loft provides a shared living area easily accessible from three additional bedrooms, including the luxurious owners suite with a full bathroom. Source: Lennar
Stay informed with Livabl updates on new community details and available inventory.