



















Images coming soon
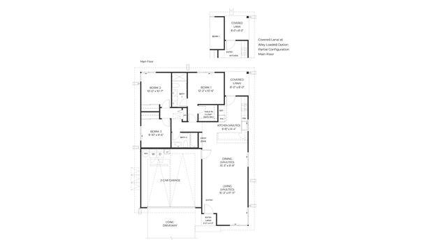
The Kaupapa plan is an open and light design that offers 3 bedrooms, 2 baths, and a total of 1,219 sq. ft. of living space. When you walk in the front door of this new home, you can picture memories being made here. The open vaulted living room flows seamlessly into the dining area, leading to the kitchen and out to your covered lanai. You'll love the modern-style white cabinets and drawers with soft-close capabilities. The kitchen also features a Kohler single-basin vault sink, and a KitchenAid stainless steel appliance package that includes a range/oven, micro-hood, and dishwasher. The primary bedroom is a gorgeous space that includes a large walk-in closet/safe room and an ensuite bathroom with dual sinks and a step-in shower. Enjoy features such as split ACs in the living area and bedrooms, vinyl plank flooring in the living and kitchen areas, and plush c...