

Get additional information including price lists and floor plans.
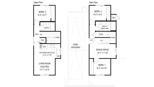
This two story 3-bedroom 2-bathroom detached single family home consists of 959 square feet of net living area and a fully fenced private back yard area. The first level features two secondary bedrooms and a bathroom with a walk-in shower and vanity sink. Also on this floor is a bonus room, perfect for a home office, game room, or lounge area. The second level features a kitchen and living room, offering a defined space for relaxation, entertainment, or gathering with guests. You will also find a primary bedroom with a shower-tub combination. Whole house split air conditioning and modern appliances including a range/oven, micro-hood, dishwasher, refrigerator, and washer/dryer allow for ease of living.
Stay informed with Livabl updates on new community details and available inventory.