






















Images coming soon
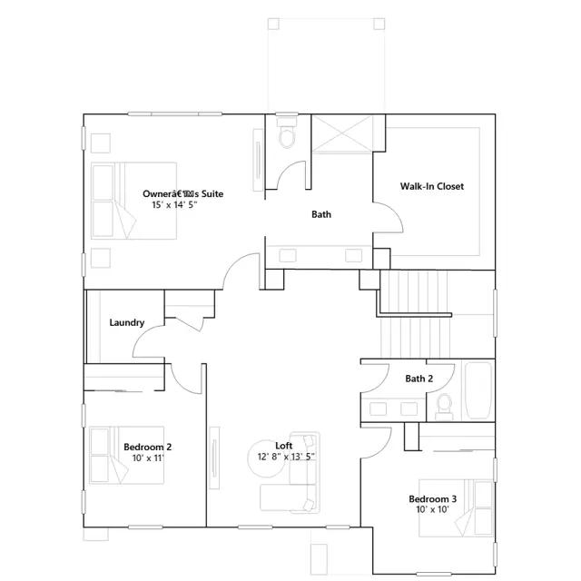
This new two-bedroom home features a convenient bedroom off the entry near an inviting open-concept floorplan that combines the kitchen, living and dining areas for simple entertaining and multitasking. A covered patio offers a personal outdoor oasis ready for outdoor enjoyment. Three additional bedrooms surround a versatile loft on the second floor, including the lavish owners suite with a full bathroom and walk-in closet.
Stay informed with Livabl updates on new community details and available inventory.