



































Images unavailable
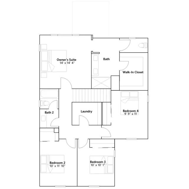
This new two-story home is host to an inviting open-concept layout on the first floor, with a nearby patio for seamless indoor-outdoor transitions. All four bedrooms are located on the second floor, including the lavish owners suite at the back of the home, complete with a spa-inspired bathroom and generous walk-in closet.