





























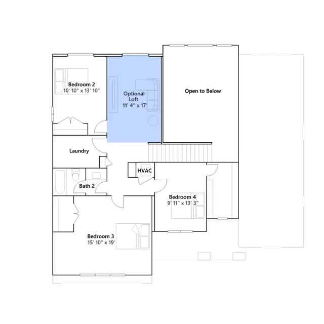
This new two-story home features a luxurious owners suite on the first floor, a tranquil retreat complete with a full bathroom and walk-in closet. A versatile living room is secluded near the front of the home, leading to a spacious open-concept floorplan where the kitchen, dining room and family room meet. Four additional bedrooms comprise the second floor.
Stay informed with Livabl updates on new community details and available inventory.