



































































Get additional information including price lists and floor plans.
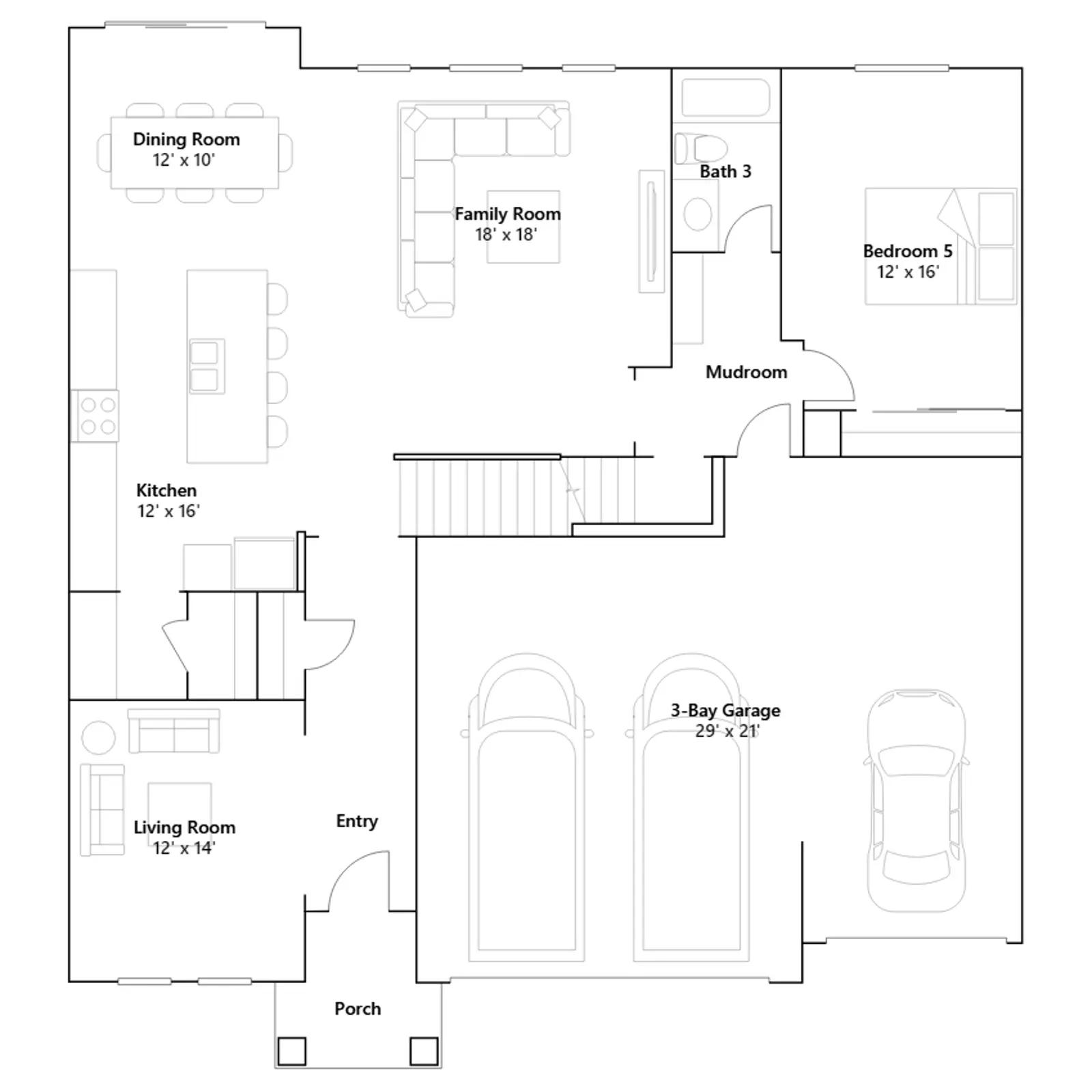
A double-height family room serves as the heart of this two-story home, with easy access to the kitchen and dining room through the open floorplan. A versatile living room off the entry could operate as a sitting room or home office, while a secondary bedroom is ideal for overnight guests. Four more bedrooms, including the expansive owners suite, surround the loft on the second floor.
Stay informed with Livabl updates on new community details and available inventory.