



































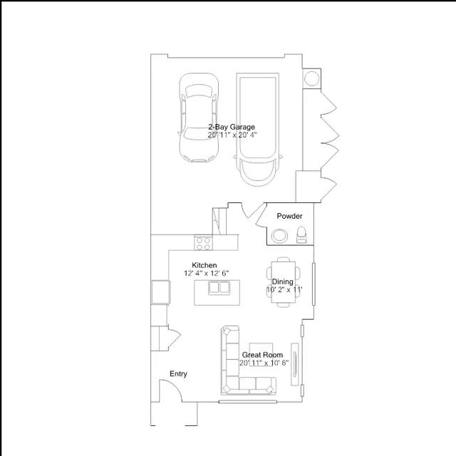
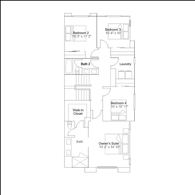
The Great Room, kitchen and dining area share a convenient and contemporary open floorplan on the first level of this two-story townhome, allowing for seamless movement between spaces. All four bedrooms can be found upstairs, including the luxe owners suite which is complemented by a spa-like bathroom and generous walk-in closet.
Stay informed with Livabl updates on new community details and available inventory.