
















Get additional information including price lists and floor plans.
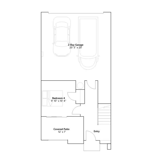
Sunbow is a master-planned community offering three collections of attached homes for sale in Chula Vista, CA. This three-story floorplan offers plenty of well-designed space. On the first level is a two-bay garage, along with a secondary bedroom. The second floor hosts an open layout shared by the central kitchen with island, dining area next to a deck and Great Room. The top floor hosts two bedrooms, each with en-suite bathrooms, including the luxe owner's suite.
Stay informed with Livabl updates on new community details and available inventory.