
























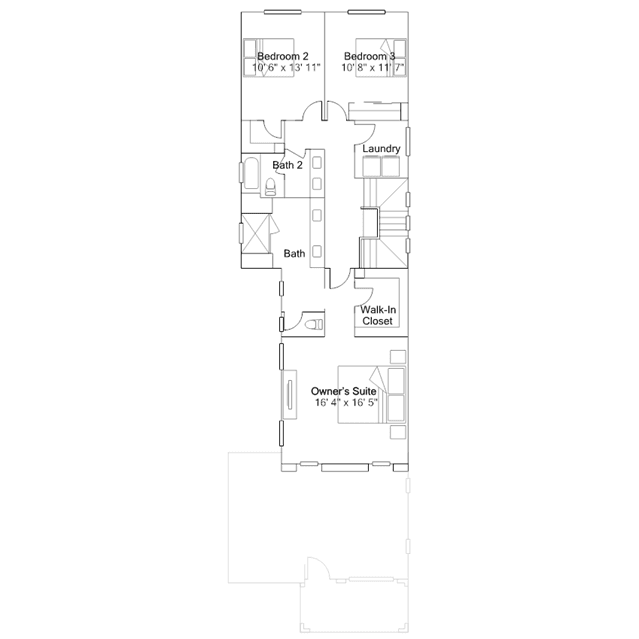
This two-story home conveniently offers four bedrooms, making it ideal for growing households. The kitchen, living room, dining room and Great Room share an open layout and have direct access to an outdoor space for entertainment. A sole secondary bedroom and a full-sized bathroom on the first floor are perfect for accommodating overnight guests. Upstairs are two additional secondary bedrooms, along with a luxe owner's suite with an en-suite bathroom and walk-in closet.