





































































Images coming soon
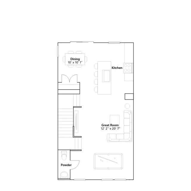
This new three-story townhome boasts a modern and spacious layout. A recreation room on the first floor makes it easy to entertain and relax throughout the week. On the second level is a flexible open-concept floorplan shared between the kitchen, living and dining areas. Three bedrooms make up the third floor, including the luxe owners suite with a spa-inspired bathroom and walk-in closet.
Stay informed with Livabl updates on new community details and available inventory.