





















































































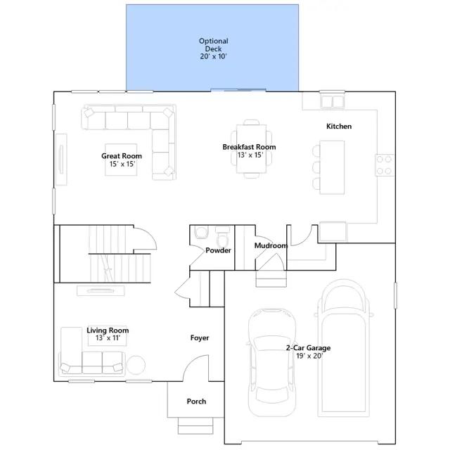
The first floor of this charming two-story home is host to a spacious open floorplan that seamlessly connects an inviting Great Room, dining room and chef-inspired kitchen, with a living room located off the foyer for even greater versatility. Upstairs there are four bedrooms, including the restful owners suite, which features a bedroom, en-suite bathroom and generous walk-in closet.
Stay informed with Livabl updates on new community details and available inventory.