















































Get additional information including price lists and floor plans.
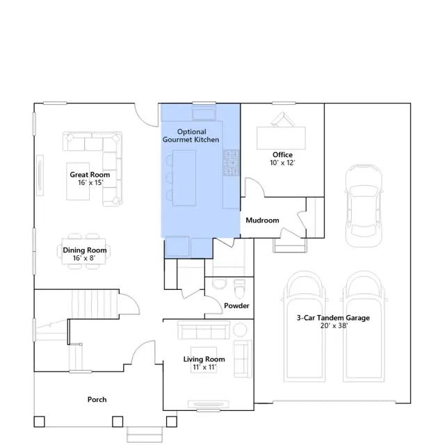
This new two-story home design is all about gracious living. The first floor showcases an appealing open-plan layout among the Great Room, dining room and spacious kitchen with a center island and walk-in pantry. A formal living room provides space for entertaining, and a secluded home office offers privacy. Upstairs, four bedrooms including the owners suite all feature walk-in closets. A loft adds shared-living space. An unfinished basement can be completed for additional living space.
Stay informed with Livabl updates on new community details and available inventory.