hero-image-0

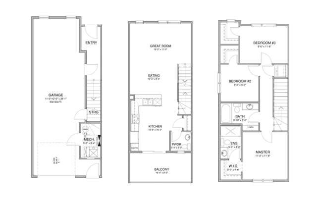
SEDICI Plan

The Centro in Cornerstone
Sold
Sold
3
3
2
1
From 1,413
unit-banner-imageunit-banner-imageunit-banner-image
SEDICI Plan details
SEDICI Plan is now sold.
Check out available nearby plans below.

Available homes

Interested? Receive updates

Stay informed with Livabl updates on new community details and available inventory.