hero-image-0
hero-image-1

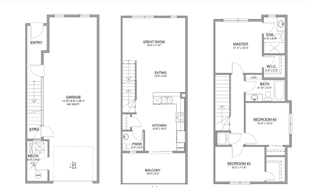
VENTI Plan

The Centro in Cornerstone
For sale
For sale
Pricing coming soon
3
2
1
From 1,370
unit-banner-imageunit-banner-imageunit-banner-image
VENTI Plan details

Contact sales center

Get additional information including price lists and floor plans.

Interested? Receive updates

Stay informed with Livabl updates on new community details and available inventory.