hero-image-0

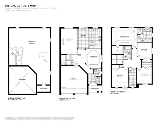
Oak 2-Mod Plan

By

Poetry Living

   |   

Ellis Lane

Ellis Lane
Sold
Sold
4
2
1
From 2,186
unit-banner-imageunit-banner-imageunit-banner-image
Oak 2-Mod Plan details
Oak 2-Mod Plan is now sold.
Check out available nearby plans below.