hero-image-0
hero-image-1

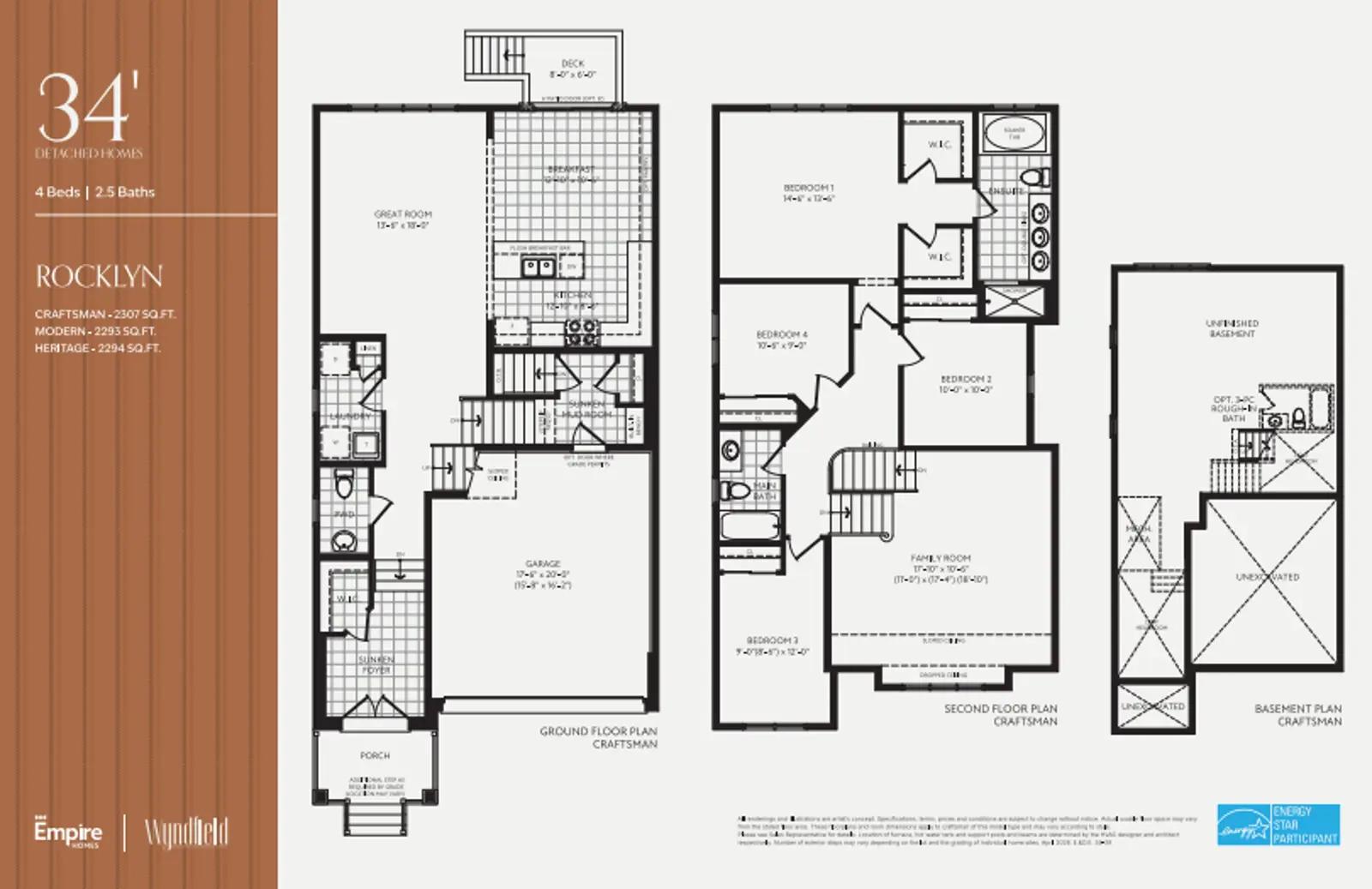
The Rocklyn B Plan

By

Empire Homes

   |   

Wyndfield

Wyndfield
For sale
For sale
From $900,990
2
4
2 - 3
1
From 2,293
unit-banner-imageunit-banner-imageunit-banner-image
The Rocklyn B Plan details

Contact sales center

Get additional information including price lists and floor plans.

Interested? Receive updates

Stay informed with Livabl updates on new community details and available inventory.