hero-image-0
hero-image-1

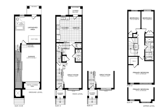
Chevron 1 Plan

Electric Grand Towns
For sale
For sale
Pricing coming soon
3
1
1
From 1,396
unit-banner-imageunit-banner-imageunit-banner-image
Chevron 1 Plan details

Contact sales center

Get additional information including price lists and floor plans.

Interested? Receive updates

Stay informed with Livabl updates on new community details and available inventory.