hero-image-0

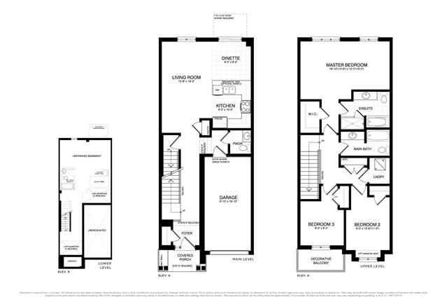
Finlay Plan

Brantview Heights Phase 2
Sold
Sold
3
2
1
From 1,593
unit-banner-imageunit-banner-imageunit-banner-image
Finlay Plan details
Finlay Plan is now sold.
Check out available nearby plans below.