hero-image-0
hero-image-1

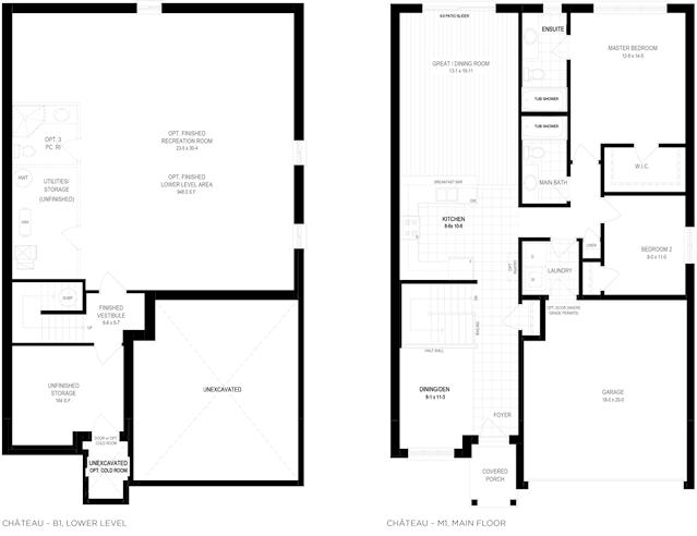
Wentworth - Traditional Plan

Brant West Phase 1
Sold
Sold
2
2
From 1,360
Wentworth - Traditional Plan details
Wentworth - Traditional Plan is now sold.
Check out available communities below.