




































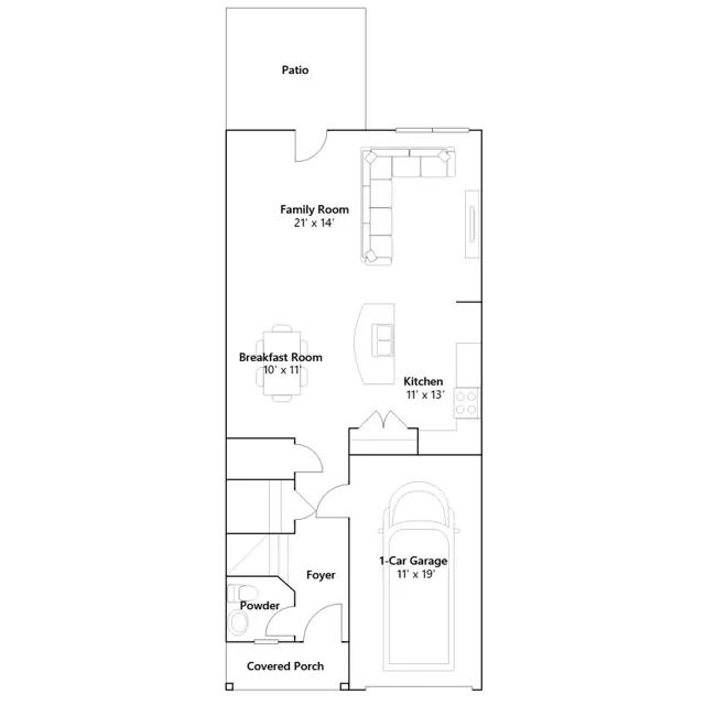
Comfort and elegance meet in this new two-story townhome design. The first floor offers both a covered front porch and back patio for optimized indoor-outdoor living. An open design seamlessly connects the family room, kitchen and breakfast nook. Upstairs are two secondary bedrooms and a luxe owners suite with a tray ceiling.
Stay informed with Livabl updates on new community details and available inventory.