






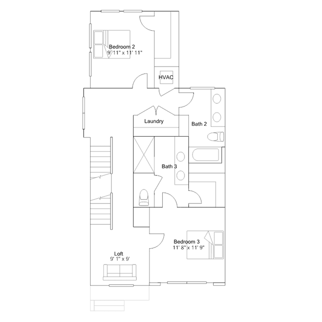
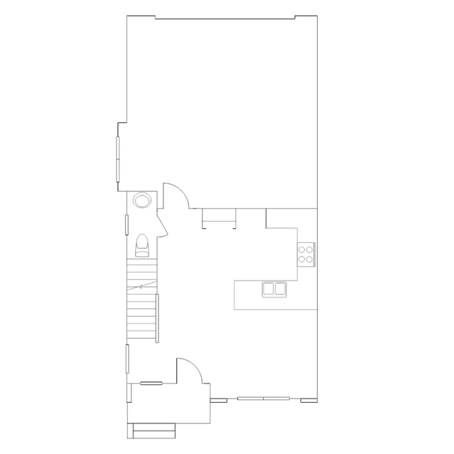
This three-story townhome offers a great layout, with the main living areas on the first floor along with the two-car garage. On the second floor is a loft, two secondary bedrooms and two bathrooms. The third level hosts an additional loft, extra bedroom and the expansive owners suite with private balcony.