


Get additional information including price lists and floor plans.
Stay informed with Livabl updates on new community details and available inventory.

Allegro brings luxury living to Aurora
Set on a former golf course property, minutes from Yonge Street and bordering Bathurst Street, award-winning home builder Geranium is giving future residents of Allegro...

Geranium’s Allegro builds luxury community on former Aurora golf course
Can you create a master-planned luxury community and fit it on a former golf course in downtown Aurora? That’s what Geranium is doing with Allegro. This is the third phase of the project and homeowners are already living in the area. Alle ...

Luxury detached home community Allegro by Geranium is coming soon to Aurora
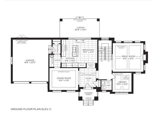
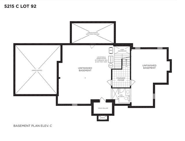
Allegro is a premium collection of 159 detached homes set on large 52- and 61-foot cul-de-sac lots with prices starting in the $2-million range.